MANNELLA * Design- und Wohnen in einem Plus – Energiehaus Mannella Immobilienservice Kölner Straße 35-37

MANNELLA * Design- und Wohnen in einem Plus – Energiehaus

Meldung

16.02.2021: MANNELLA * Design- und Wohnen in einem Plus – Energiehaus

Schick, energiesparsam und hochwertig

Auf einem sonnigen Südwest-Grundstück entstand 2019 dieser im modernem Baustil erbaute Dreispänner als "Plus-Energiehaus". Der attraktive Entwurf stammt von dem Hennefer Architekturbüro Iken. Besonders viel Wert wurde auf große Fensterflächen, familiengerechte und zugleich flexible Grundrisse, eine optimale Raumnutzung und eine hochwertige Ausstattung gelegt. 
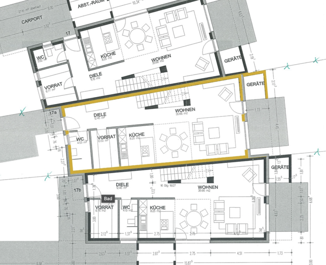
Das Erdgeschoss umfasst Wohnen, Essen und Kochen als "Open-Space" einschließlich Gäste-WC und Hauswirtschaftsraum/Abstellraum. Im Obergeschoss sind drei schöne Schlaf- bzw. Kinderzimmer mit Balkonzugang und ein Tageslicht-Bad mit bodengleicher Dusche und Wanne untergebracht.
Jedes Haus hat eine blick-geschützte, teilüberdachte Terrasse mit anschließendem Privatgarten, der auch von hinten zugänglich ist (Abtransport von Gartenabfällen und Zuweg Fahrräder). Bodentiefe Fenster mit Glasbrüstungen, Parkettböden, großformatige graue Fliesen mit Fußbodenheizung sowie puristisches Baddesign mit cleanen Sanitärobjekten, bodengleicher Dusche und Feinstein in Holzoptik schaffen ein einladendes Wohnambiente. Wohnen, Essen und Kochen gehen Hand in Hand. Ideal gegliederte Livingbereiche vereinen diese Funktionen auf elegante, entspannte Weise. Die offen gestaltete Küche kann optional vom Vormieter übernommen werden und erfüllt alle Ansprüche an einen modernen, familienfreundlichen Lebensstil und lassen großzügige, zwanglose Lebensräume entstehen. 
Wir lieben Licht und Luft. Großflächige, überwiegend bodentiefe Fensterfronten mit Glasbrüstungen und Glaskuppeln im Galeriebereich und im Bad verleihen der Fassade und dem Haus Transparenz und den Räumen ein herrlich lichtes Ambiente. 
Für Ihr Werkzeug, Gartenutensilien oder andere Gegenstände, die Sie lagern möchten, steht eine Abstellraum neben der Terrasse zusätzlich zum Abstellraum im Flurbereich zur Verfügung.
Eine technisch hochwertige Photovoltaikanlage versorgt die Viessmann-Luftwärmepumpe mit dem notwendigen Strom und erzeugt, wie unten aufgeführt sogar mehr Strom, als benötigt.
(Verbrauch der letzten 14 Monate für Heizung, Licht Strom: 5102 KWh, Ertrag von der Sonne: 5336 KWh = Klimabilanz: 234 KWh an mehr Leistung erzeugt)
Jedem Haus sind zwei Stellplätze zugeordnet.

Bildschirmfoto 2021-02-16 um 12.40.28
Bildschirmfoto 2021-02-16 um 12.40.39
Bildschirmfoto 2021-02-16 um 12.40.43
Bildschirmfoto 2021-02-16 um 12.40.51
Bildschirmfoto 2021-02-16 um 12.40.59
Bildschirmfoto 2021-02-16 um 12.41.08
Bildschirmfoto 2021-02-16 um 12.41.16
Bildschirmfoto 2021-02-16 um 12.41.29

mehr

Karte

Karte wird geladen ...

Zum Aktivieren der Karte müssen Sie unten auf den "Akzeptieren"-Button" klicken. Wir möchten Sie darauf hinweisen, dass nach der Aktivierung Daten an den jeweiligen Anbieter (Google Maps) übermittelt werden.

Breitengrad: 50.814396
Längengrad: 7.159901

Tags

Straße

Kölner Straße

Branchen

Dienstleistung

Stadtteil

Mitte