Pssst noch geheim SIEGER & SIEGER Immobilien GmbH Kölner Straße 23

Pssst noch geheim

Meldung

02.09.2020: Pssst noch geheim

Provisionsfrei! Vielseitige Gewerbefläche zur Vermietung in Troisdorf/Sieglar

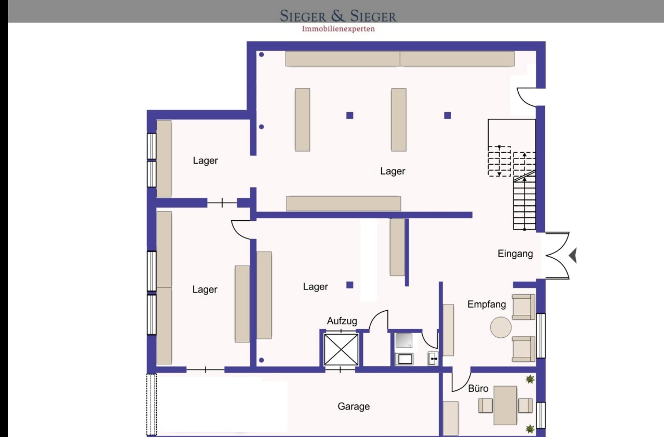
Diese schön gelegene Gewerbeeinheit befindet sich in stark frequentierter Lage von Troisdorf-Sieglar. 

Das Objekt besticht durch die offene Gestaltung und vielseitigen Nutzungsmöglichkeiten. Im Eingangsbereich befindet sich Platz für Büroflächen und einen abgetrennten Empfang. Sanitäreinrichtungen sind vorhanden und im gepflegten Zustand. Im Erd und Obergeschoss befinden Sich ca. 600 m² Nutzfläche. Diese können als Lager oder Präsentationsfläche genutzt werden. Beide Geschosse sind mit einem Lastenaufzug zu erreichen, hiermit schaffen Sie sich maximale Flexibilität und können Ihren Planungen freien Lauf lassen.
Das gesamte Grundstück ist umzäunt und verfügt über einige Parkplätze.
Die Halle darf nicht als KFZ-Werkstatt genutzt werden. 

Unser Fazit zu dieser Gewerbeinheit: Sollten Sie auf der Suche nach Stellfläche für Ihre Oldtimer sein oder einfach auf der Suche nach genug Lagermöglichkeiten bietet diese Halle Ihnen den perfekten Raum.

Die Kaltmiete beträgt € 1950 ,- .

Weitere Informationen zu diesem Angebot erhalten Sie gerne unter 02241-77349.

Bildschirmfoto 2020-09-02 um 13.09.26
Bildschirmfoto 2020-09-02 um 13.09.22
Bildschirmfoto 2020-09-02 um 13.08.52
Bildschirmfoto 2020-09-02 um 13.09.18
Bildschirmfoto 2020-09-02 um 13.08.57
Bildschirmfoto 2020-09-02 um 13.09.01
Bildschirmfoto 2020-09-02 um 13.09.14
Bildschirmfoto 2020-09-02 um 13.08.47

mehr

Karte

Karte wird geladen ...

Zum Aktivieren der Karte müssen Sie unten auf den "Akzeptieren"-Button" klicken. Wir möchten Sie darauf hinweisen, dass nach der Aktivierung Daten an den jeweiligen Anbieter (Google Maps) übermittelt werden.

Breitengrad: 50.81428
Längengrad: 7.16153

Tags